Описание на имота
Агенция за недвижими имоти Титан Пропъртис предлага на Вашето внимание Многостаен апартамент за продажба в кв. Аспарухово.
Намира се в близост до хранителни магазини, детска градина, училище и зони за спорт и отдих.
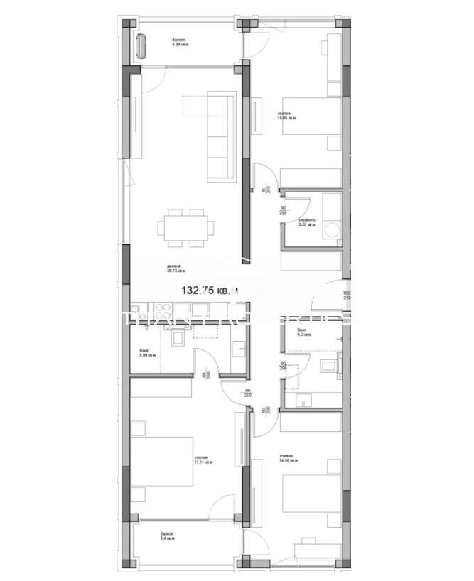
Имотът е разположен на 4-ти жилищен етаж, разполага с площ 158.61 кв.м., разгънати в следното разпределение: всекидневна с кухня, три спални, две бани с тоалетна, килер - перално, коридор, два балкона
Сградата е с Акт 14.
Допълнителна информация: Сградата се отличава с модерна визия, високо качество на използваните материали и прецизност в изпълнението на всеки детайл. Проектирана е с мисъл за комфорта и дългосрочната устойчивост. Сградата е със здрава и устойчива монолитна стоманобетонна конструкция, осигуряваща висока сеизмична устойчивост и дълъг експлоатационен живот. Външните ограждащи стени са изпълнени от стоманобетон или тухлен зид с дебелина 25 см., върху които се полага 10 см топлоизолация от минерална вата в участъците, покрити със структурна силиконова мазилка. Предвидена е висококачествена топлоизолация от минерална вата 10 см, не само за външните стени, но и под всички еркери и тераси, разположени над обитаеми помещения. Това гарантира отлична енергийна ефективност през всички сезони. Използвани са тухли ClimaTON 25 N+F Classic, които осигуряват здравина, звукоизолация и отлична топлоизолационна ефективност. Вътрешните преградни стени са с дебелина 12 см и се изпълняват от гипсокартон, което позволява гъвкаво оформление на интериора и добри шумоизолационни показатели. Монтира се немска PVC дограма REHAU Euro 70, 5-камерна, с висококачествен обков POTO и двоен стъклопакет 32 мм – включващ Sunenergy стъкло 4 мм и флоатно бяло стъкло 4 мм, гарантиращи топлинен комфорт и защита от UV лъчи. Светлите и просторни помещения са резултат от архитектурното решение за френски прозорци, което внася максимално количество естествена светлина в жилищата. Инсталирани са стъклени парапети, които хармонират с френските прозорци и допринасят за усещането за откритост и модерна естетика.
В интериора са използвани мазилки и подови настилки с отлична визия и характеристики, създаващи усещане за стил, комфорт и качество. Сградата е оборудвана с висок клас асансьори – по два на всеки вход, достъпни директно от сутерена, което осигурява бърз и удобен достъп до всички нива. На партерното ниво е обособено общо помещение / портиерна, създаващо допълнително удобство за живущите и техните гости.
Водоотводната система е интегрирана в архитектурата – скрити улуци и тръби, разположени в топлоизолацията или във вътрешни вертикални инсталационни шахти. Използвани са точкови или линейни водоприемници, според конкретния архитектурен детайл. Инвеститорът поема поддръжката на сградата, с цел да бъде запазен нейният безупречен вид, както и удобството и сигурността на живущите.
Цените на имотите варират от 68 350 евро до 353 200 евро.
Удобства в комплекса:
- "Затворен комплекс" с 24/7 охрана и контрол на достъпа.
- "Парк" с зелени площи за отдих.
- "Басейн", предлагащ възможности за релакс и спорт.
- "Търговски обекти" за удобство на жителите, включително магазин за хранителни стоки в Сграда 2.
Агенцията разполага с множество оферти в и извън района. За оглед на това и други атрактивни предложения, не се колебайте да ни потърсите на посочения телефон или да ни изпратите данните си чрез формата за запитване на сайта.
Реф. номер: 2089487
Агенцията съдейства за банково кредитиране с всички водещи банки в страната при най-добри условия!